Etusivu
Keitä olemme
Trion synty
Asunnot
Hinnasto
Yhteystiedot
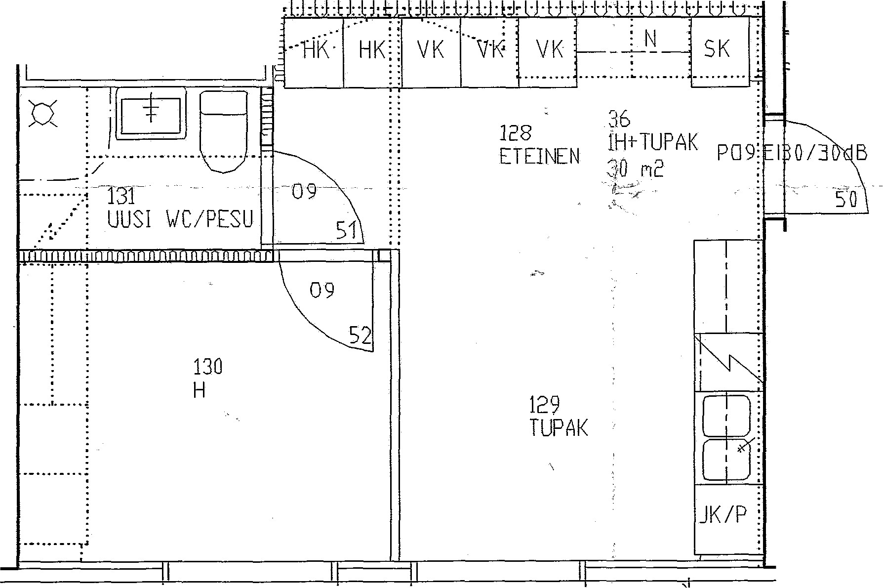
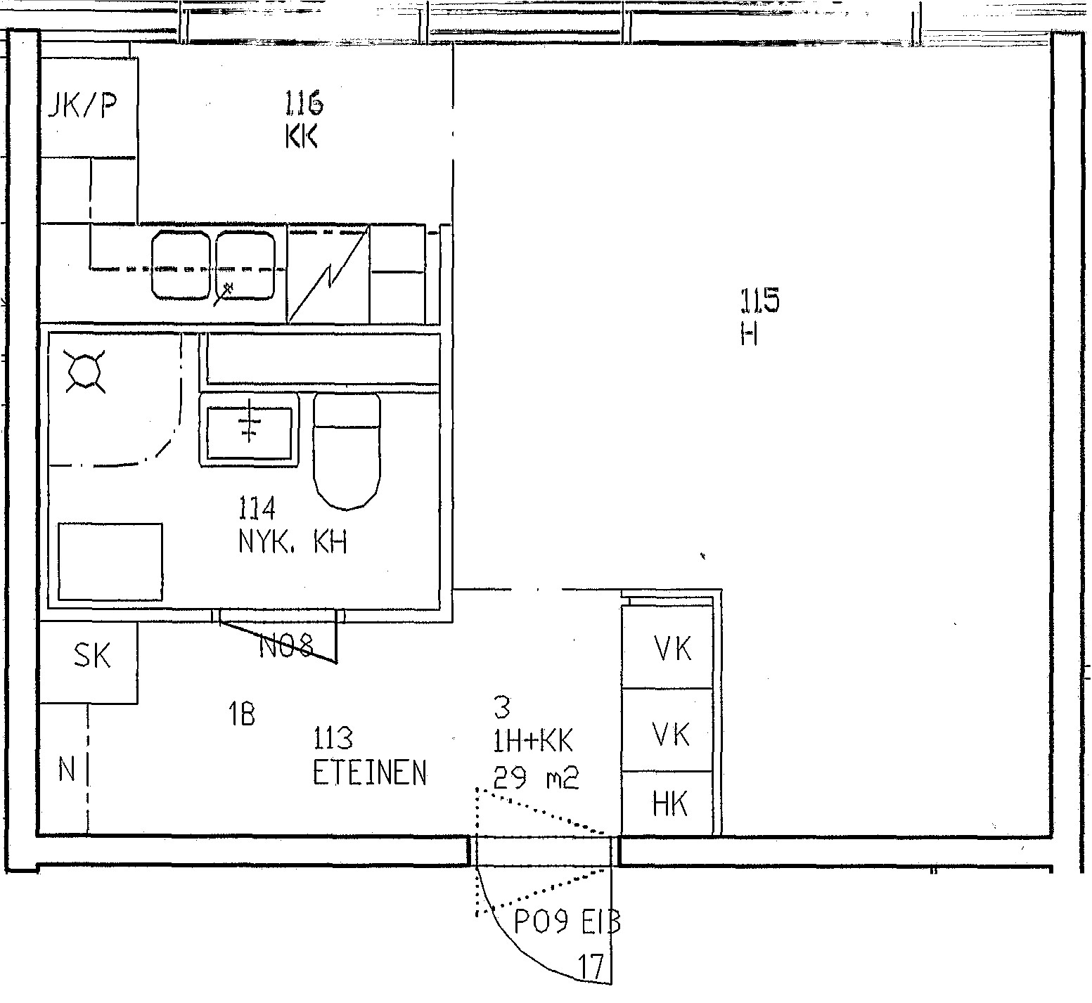
Yksiö / Kaksio 25-32m2
One room / double room appartment 25-32m2