Etusivu
Keitä olemme
Trion synty
Asunnot
Hinnasto
Yhteystiedot
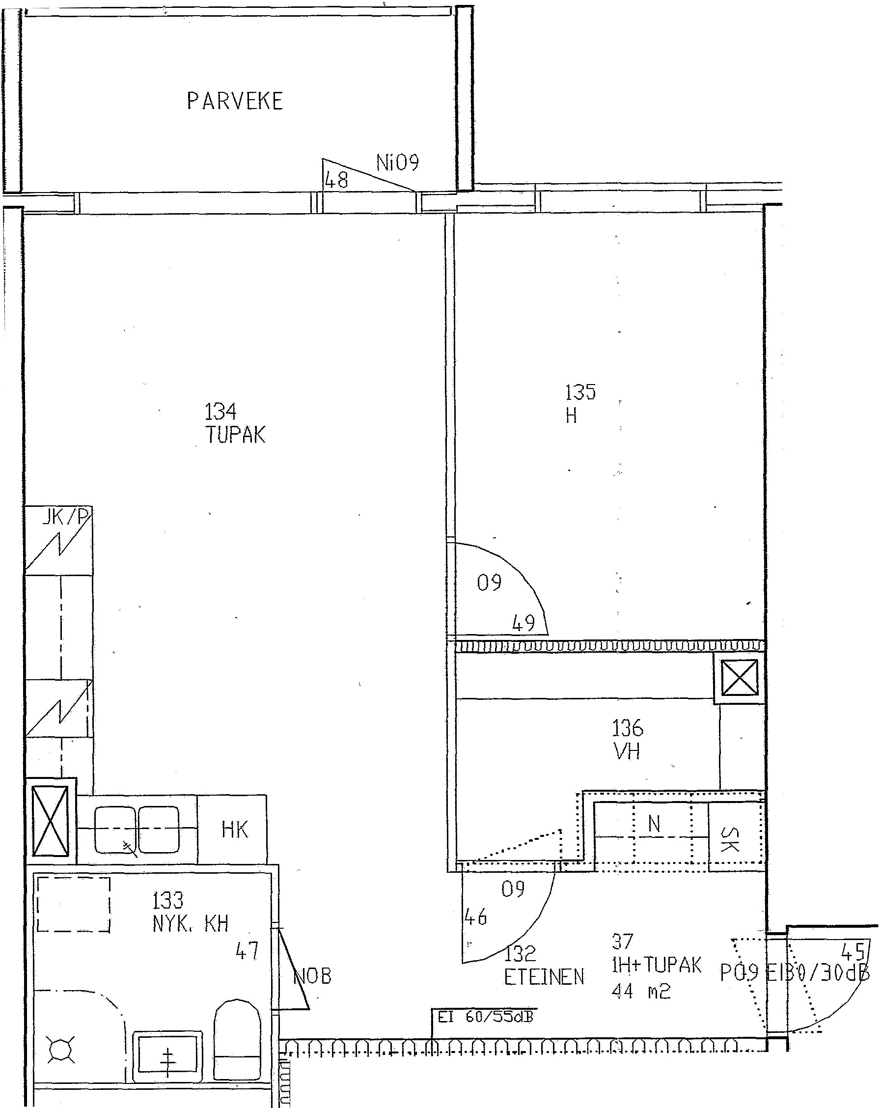
Yksiö 44-45m2
One room appartment 44-45m2